
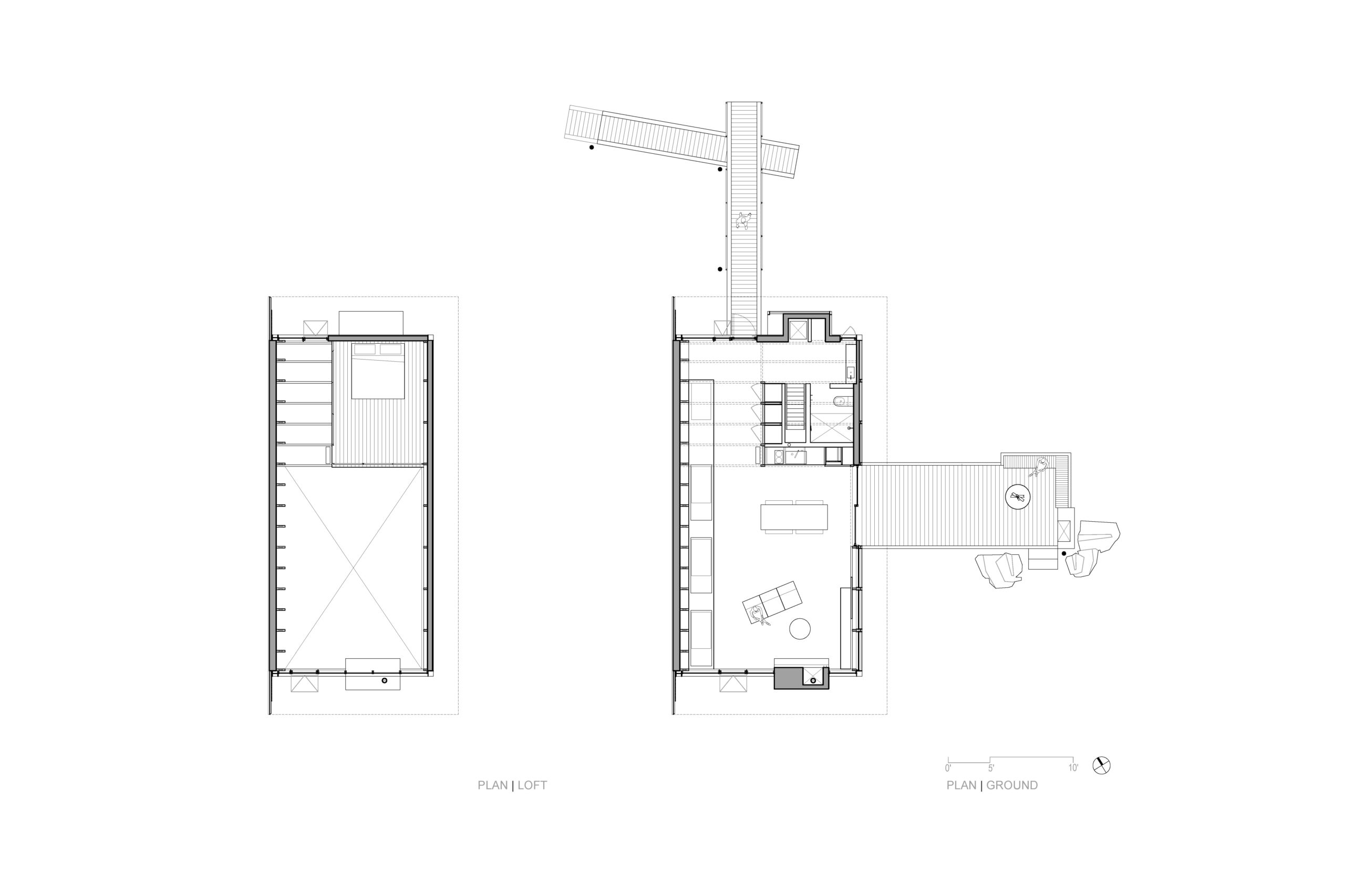
Designed in the spirit of an alpine hut, The Weekender sleeps five in a relaxed, communal space—an ideal base camp for hiking, biking, skiing, and fishing in the surrounding Indian Peaks Wilderness.

Set on five acres and coming to market in spring 2026 with architectural plans included, the cabin is shaped by its surroundings: a compact footprint opening up to 270-degree views across Barker Reservoir, Eldora Ski Resort, and the Continental Divide.



All-electric and powered by a 4 kW photovoltaic array, the design pairs efficient systems with a restrained material palette to minimize impact. The result is a small, thoughtful retreat – built to live lightly on the land.
This is a place to unplug, gather around the fire, and plan your next big adventure.
