
Perched on an alpine hillside above Boulder, Colorado, Sunshine Canyon house occupies a landscape reshaped by wildfire. With the loss of a historic cabin and century-old trees, the newly open landscape recalled Boulder’s early mining and agricultural era, providing the design’s inspiration.

A gabled roof and rugged materials recall that vernacular, while exposed beams, rusted steel cladding, and oversized barn doors tie the home to its rural roots and create a fire-resistant, low-maintenance shell.
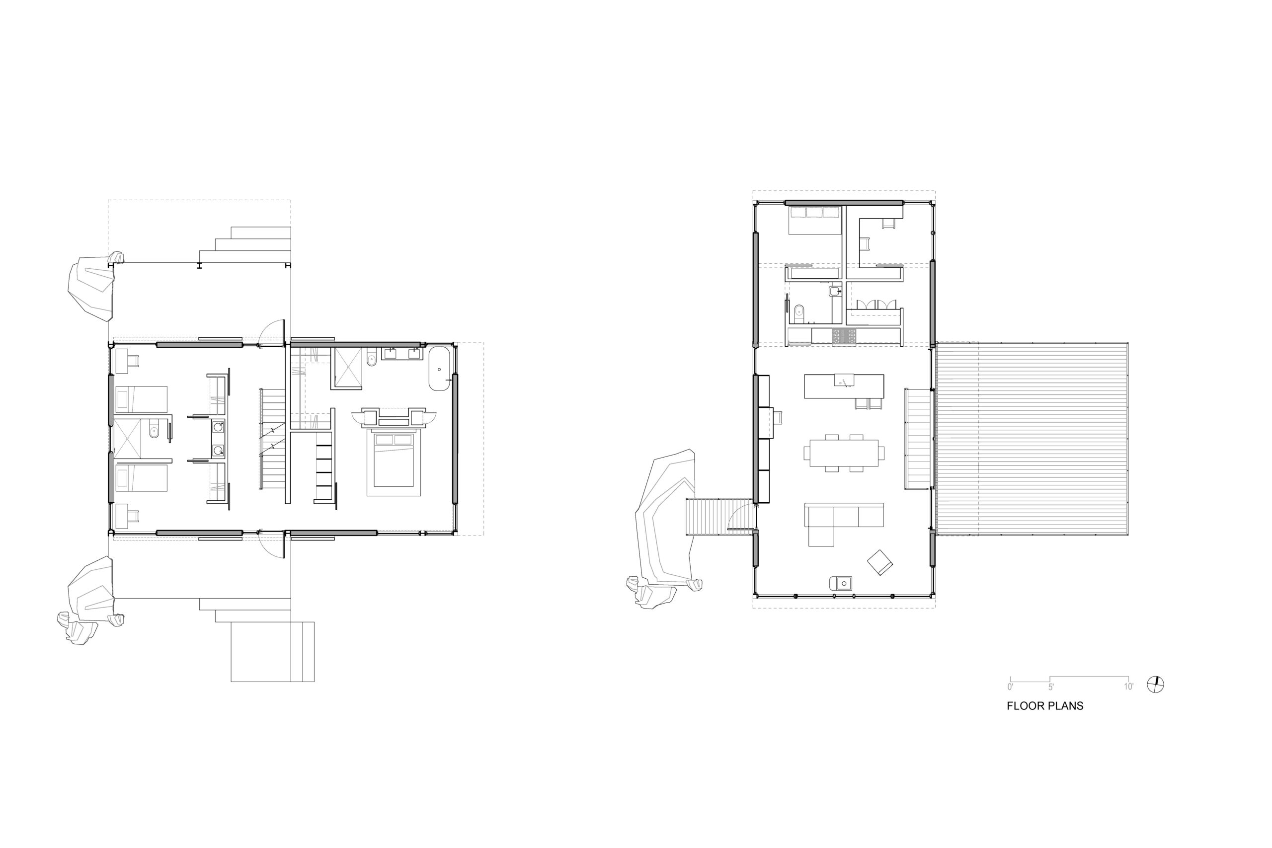
Hydronic radiant floors warm the home quietly, while a wood stove stands at its center. An open plan and expansive window wall frame long views to the mountains beyond.


A 4 kW photovoltaic array gathers the sun. Paired with electric appliances and all-LED lighting, the home lives lightly – producing as much electricity as it uses.




